X
為您的業務提供定制解決方案 - 在不穩定的環境中實現穩定和發展。
low-price
工程解決方案
order-tracking
物流與交付
勝利大道119號,
白俄羅斯共和國,明斯克

半自動撒布機

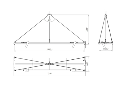
此40噸承重的集裝箱吊具專為處理40英尺集裝箱而設計。

其結構允許在船舶的貨艙格中操作集裝箱。

技術規格:

用途

處理40英尺集裝箱

尺寸

12180 x 2430 x 400 毫米

負載能力

40噸

自重

2650公斤(包括吊帶)

帶吊帶的高度

5000 毫米

該型號的設計消除了其在蜂窩型船舶和在由上層層形成的井中作業時的卡住問題。